Konzept
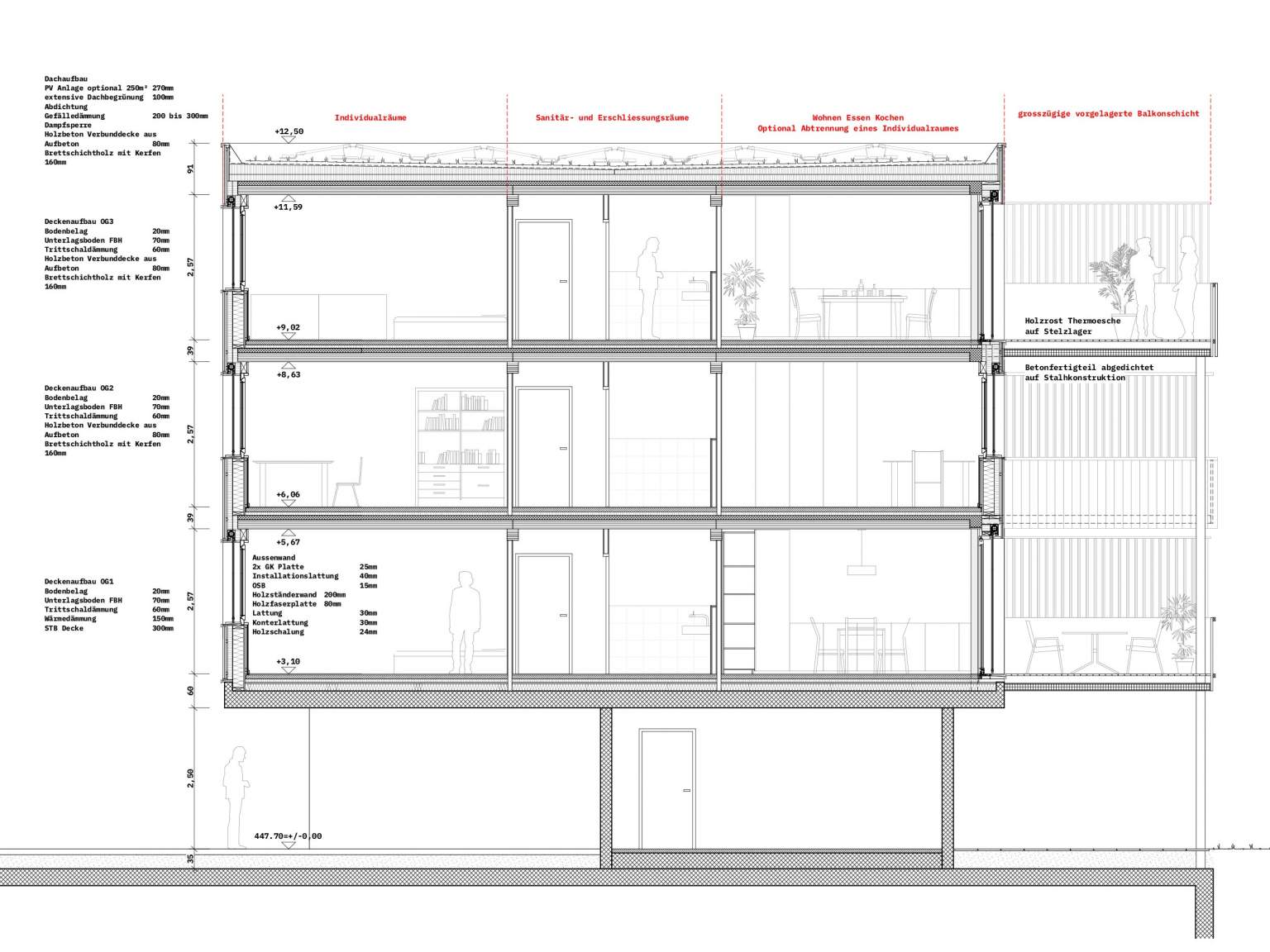
Das Wohnbauprojekt für junge Familien umfasst sechs Wohnungen, die als dreigeschossiger Holzbau auf einem Betonsockel lagern. Eine grosszügig dimensionierte, südseitige Balkonstruktur dient den Bewohnern als individueller Aussenraum. Der gemeinschaftlich nutzbare Garten stärkt die nachbarschaftliche Begegnung und bietet vielfältige Aufenthaltsqualitäten.
Die offenen Stellplätze werden durch eine abschirmende Wand und eine Pergolastruktur mit Photovoltaikelementen räumlich gefasst und gestalterisch in das Erdgeschoss integriert.
Der mittig gelegene, nordseitige Haupteingang mit dem vertikalen Erschliessungskern ermöglicht eine klare Gliederung der Aussenräume und hält den östlichen Teil des nördlichen Vorbereichs vom motorisierten Verkehr frei.
Das Sockelgeschoss ist auf die notwendigen Nebenräume reduziert: Eingangsbereich, Technik- und Müllraum sowie die wohnungsbezogenen Abstellräume. Die Auskragung der Obergeschosse schafft einen witterungsgeschützten Umgang um das Gebäude sowie gedeckte Abstellbereiche für Velos. Gartenseitig ist ein Raum als „Werkstatt“ vorgesehen, der als gemeinschaftlich nutzbarer Raum für den Garten oder andere Freizeitaktivtäten dienen kann.
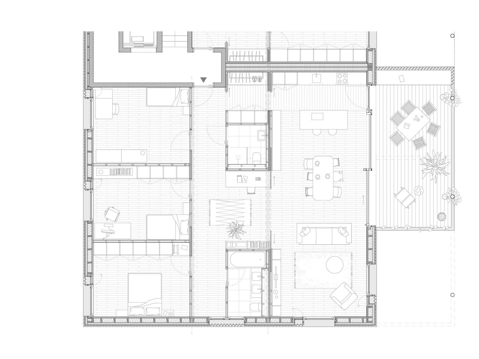
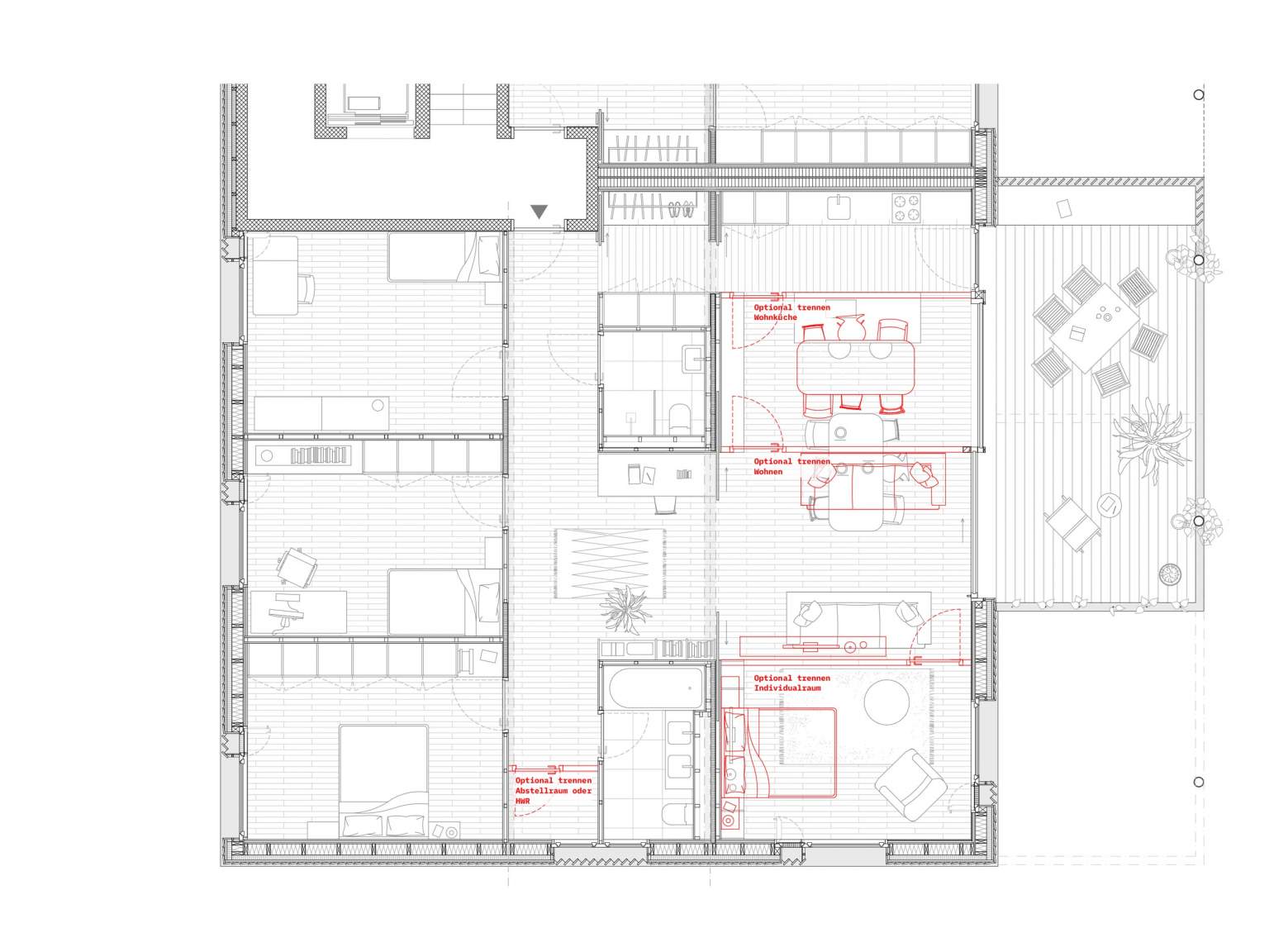
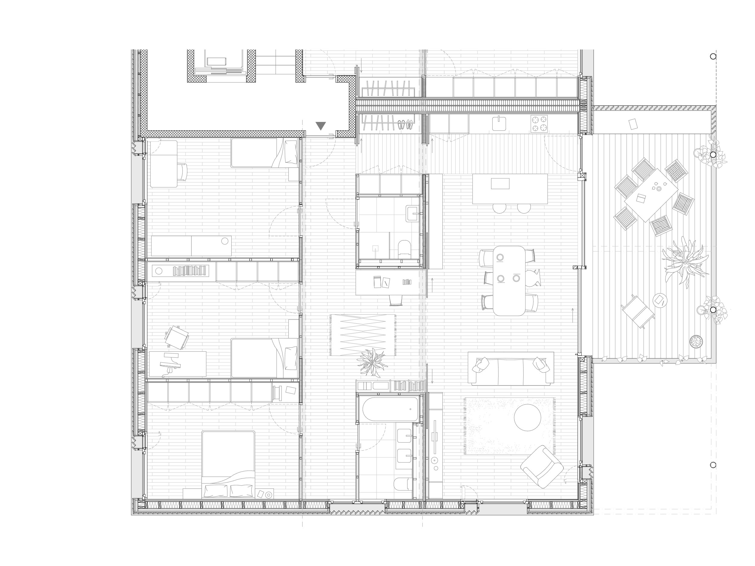
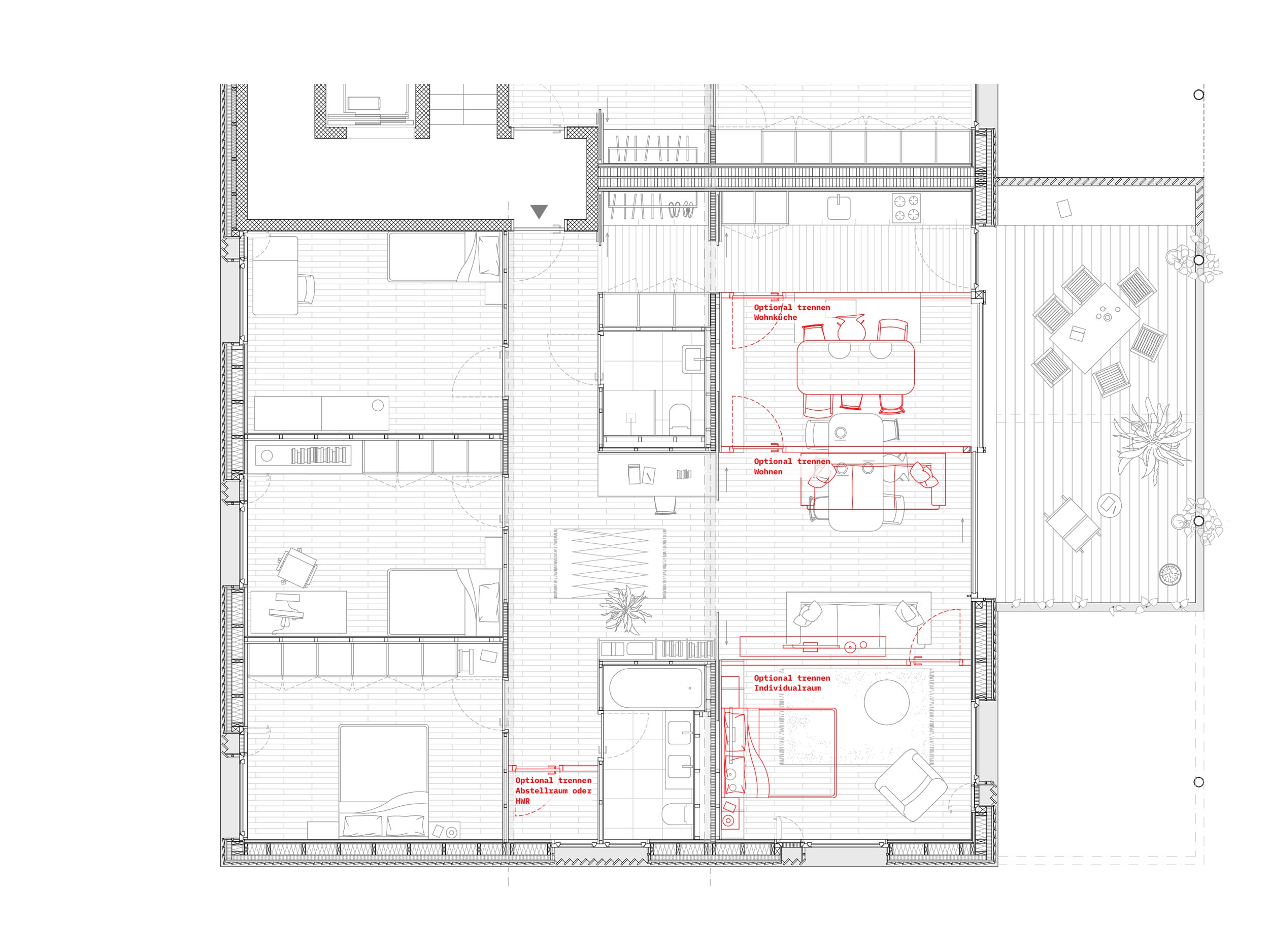
Die sechs Wohnungen sind als 4½- und 5½-Zimmerwohnungen mit Flächen von ca. 125 m² bzw. 140 m² konzipiert.
Die Grundrissorganisation folgt einem klaren Dreispurprinzip:
• Nordseitig liegen die Individualräume sowie der Erschliessungskern,
• im Mittelbereich die Sanitärräume und vertikalen Installationen und die wohnungsinterne Erschliessung
• südseitig die Wohn-, Ess- und Kochbereiche mit direktem Bezug zum Garten und den tiefen Balkonen, mit der zusätzlichen Option einen weiteren Individualraum abzutrennen.
Durch das statische Konzept sind die nördliche und südliche Spur frei unterteilbar, was eine hohe Flexibilität in der Grundrissgestaltung ermöglicht. Je nach Ausbildung der Kernzone entstehen zusätzliche, gut nutzbare Restflächen. Damit können Grundrisse über die Zeit an unterschiedliche Lebensphasen angepasst werden – von Familien mit mehreren Kindern über Wohngemeinschaften bis zu Paaren mit Homeoffice oder Gästezimmer.
Wettbewerb Neubau
2025
Ort: Schaan (LIE)
Auftraggeber: Gemeinde Schaan

















1/5